NEWAGE PRM MARINE GEARBOX TRANSMISSIONS SERVICE REPAIR MANUAL
⚫ Instant Download
⚫ No Physical Shipping

Guarantee safe & secure checkout

NEWAGE PRM MARINE GEARBOX TRANSMISSIONS SERVICE REPAIR MANUAL
NEWAGE PRM MARINE GEARBOX TRANSMISSIONS SERVICE REPAIR MANUAL
LANGUAGE: ENGLISH
FORMAT: PDF
PAGES: 1,270
FILE SIZE: 77.3MB
INCLUDED IN THIS MANUAL:
PRM 80 WORKSHOP
PRM 101/160 NEWAGE WORKSHOP
PRM 120 NEWAGE WORKSHOP
PRM 120 PARTS
PRM 150 NEWAGE WORKSHOP
PRM 125D WORKSHOP
PRM 160 WORKSHOP
PRM 260 WORKSHOP & PARTS
PRM 280D & 280DP NEWAGE WORKSHOP
PRM 301 NEWAGE WORKSHOP
PRM 302 WORKSHOP
PRM 310 NEWAGE WORKSHOP
PRM 401 NEWAGE WORKSHOP
PRM 402 NEWAGE WORKSHOP
PRM 500 WORKSHOP
PRM 601 NEWAGE WORKSHOP
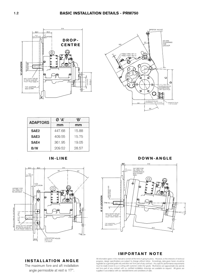
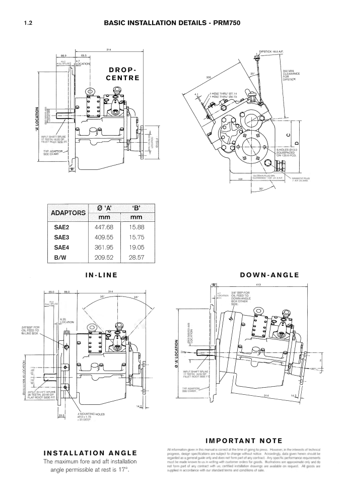
PRM 750 WORKSHOP
PRM 1000 WORKSHOP
PRM 1500 WORKSHOP
PRM 1750 WORKSHOP
PRM FYDRAULIC MARINE GEARBOX WORKSHOP
PRM100
PRM140S
PRM140T
PRM175
PRM250
PRM265S
PRM265T
PRM FYDRAULIC MARINE GEARBOX WORKSHOP
PRM140S
PRM14DT
PRM140L
PRM265S
PRM265T
PRM265L
PRM NEWAGE WORKSHOP
PRM 302D OFFSET
PRM 302A ANGLE DRIVE
PRM 302C IN-LINE
PRM DELTA MARINE GEARBOX WORKSHOP
OWNER'S HANDBOOK